Мы используем cookie. Подробнее

Новости

  • 04.09.17

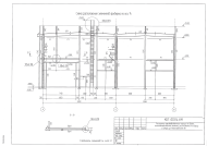
    Мясоперерабатывающий цех в Московской области

    Наш завод приступил к реализации нового проекта по изготовлению металлоконструкций мясоперерабатывающего цеха в Московской области. Покрытие здания запроектировано из стропильных ферм и балок, которые шарнирно опираются на ж/б колонны. Система горизонтальных связей вместе с прогонами обеспечивает раскрепление стропильных балок и ферм из плоскости. Общий тоннаж — ...
  • 31.08.17

    Пожарное депо, Домодедово

    Получен новый заказ на металлоконструкции для объекта «Пожарное депо», расположенный в городском округе Домодедово. Основные конструкции — стойки, связи, распорки, колонны, балки, согласно чертежам Заказчика стадии КМ. Металлоконструкции изготавливаются из Стали 3. Общий объем металлоконструкций — 18 тн. Менеджер проекта: Головков Дмитрий тел. 8 (987) 446-29-70, почта: ...
  • 28.08.17

    Новый станок! GEKA Hydracorp 110 SD Испания

    У нас новый станок! GEKA Hydracorp 110 SD, производства Испания. Этот станок предназначен для пробивки отверстий в листовых заготовках. Мы купили его в полной комплектации с ЧПУ столом SEMI-PAXY 1000×500. Также этот станок может рубить уголки, швеллера и пруток. Поставщик — компания «Маштехника» из Москвы. С ...
  • 07.08.17

    Котельная в Московской области

    Получен новый заказ на изготовление и поставку сварных металлоконструкций для объекта «Котельная», расположенный в Ногинском районе Московской области. Основные конструкции — сварные колонны и балки, согласно чертежам Заказчика стадии КМД. Металлоконструкции изготавливаются из Стали 3 и 09Г2С. Антикоррозионная защита: грунт ГФ-021, серый, не менее 40 ...
  • 31.07.17

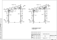
    Кормоцех гидропонного корма, Московская область

    В производство работ поступил новый заказ на изготовление металлоконструкций для объекта "Кормоцех гидропонного корма" в Московской области. Общий вес — 75 тонн. Покрытие здания запроектировано из стропильных балок, которые опираются на ж/б колонны. Прогоны шарнирно опираются на стропильные балки. Горизонтальные связи обеспечивают раскрепление стропильных балок из плоскости. ...
  • 24.07.17

    Добавлена страница и видео «КОНТРОЛЬ СВАРКИ»

    На нашем сайте добавлена новая страница «Контроль СВАРКИ» И новое видео на нашем канале « YouTube ЗМК Аполло»   ...
  • 19.07.17

    Производственное здание, г. Нерюнгри

    В производство работ поступил новый заказ на изготовление металлоконструкций для объекта "Производственное здание, г. Нерюнгри". Общий вес — 156 тонн.  Основные конструкции каркаса — колонны, балки перекрытий, стропильные фермы, подкрановые балки, связи, прогоны, а также фахверк согласно чертежам Заказчика стадии КМ. Металлоконструкции изготавливаются из Стали 09Г2С по ГОСТ ...
  • 05.07.17

    Завод legrand в Ульяновске

    Получен новый заказ на изготовление и поставку металлоконструкций для объекта «Завод по производству электротехнической продукции ЛЕГРАНД», расположенный в индустриальной зоне «Заволжье» Ульяновской области. Основные конструкции — колонны, фермы, связи, прогоны, согласно чертежам Заказчика стадии КМ. Металлоконструкции изготавливаются из Стали 3. Антикоррозионная защита: грунт ГФ-021 (1 ...
  • 25.06.17

    Добавлено новое видео — СБОРКА и СВАРКА

    Добавлено новое видео с коротким описанием процесса сборки и сварки на нашем ЗМК Аполло смотрите на странице ВИДЕО или на нашей странице YouTube/ЗМК Аполло подписывайтесь на наш канал в канал YouTube/ЗМК Аполло ...
  • 17.06.17

    Новая страница сайта — ВХОДНОЙ КОНТРОЛЬ

    Опубликована новая страница на нашем сайте - ВХОДНОЙ КОНТРОЛЬ металлопроката   ...
Logo Header Menu